大于50m²无可开启外窗且经常有人员停留的房间应设置排烟设施
文章来源:www.gsthwxf.com作者:海湾消防公司人气:340日期:2026-02-02 10:37:36
问题:建筑面积大于50m²,无可开启外窗且经常有人员停留的房间未设置排烟设施。
依据《建筑防火通用规范》GB55037-2022第8.2.5条
8.2.5 建筑中下列经常有人停留或可燃物较多且无可开启外窗的房间或区域应设置排烟设施:
1 建筑面积大于50㎡的房间;
2 房间的建筑面积不大于50㎡,总建筑面积大于200㎡的区域。
【条文说明】本条规定了各类建筑中无可开启外窗的房间设置排烟设施的基本要求。这些建筑包括工业与民用建筑、独立的地下和半地下工业与民用建筑、平时使用的人民防空工程、地铁车站、隧道工程的辅助用房、城市综合管廊工程的辅助用房等。
防火窗、固定窗均不属于可开启外窗,不能视为自然通风排烟窗口。
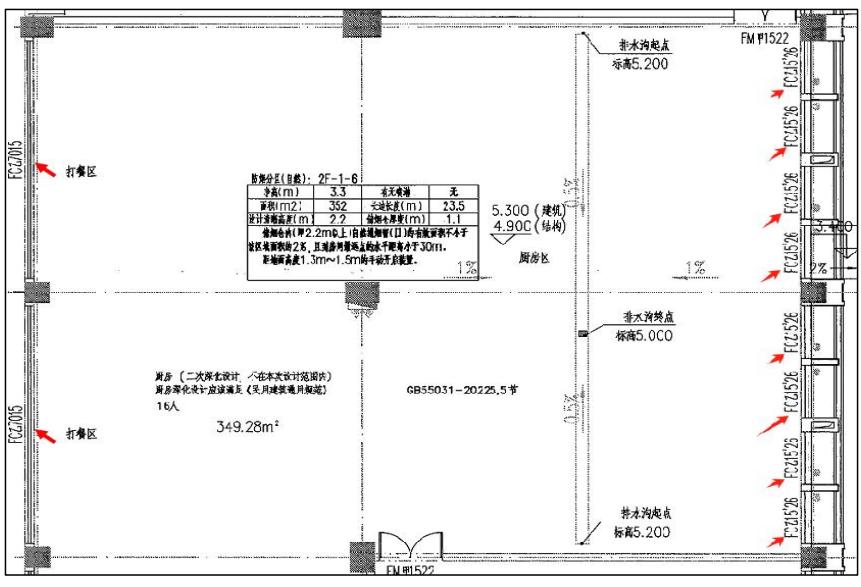
案例1:某项目建筑面积大于50m²,无可开启外窗且经常有人员停留的房间未设置排烟设施,不满足规范要求。如下图所示。

案例2:某项目建筑面积大于50m²,设置防火窗(左)、固定窗(右)且经常有人员停留的房间未设置排烟设施,不满足规范要求。如下图所示。

案例3:某项目建筑面积大于100m²且经常有人员停留的房间采用自然排烟,但自然排烟窗采用防火窗,不满足规范要求。如下图所示。

海湾安全技术有限公司主营:海湾消防报警系统销售报价,消防工程改造,气体灭火、电气火灾安装,售后安装维修,检测,调试,海湾消防网址:http://www.gsthwxf.com/;海湾服务热线:18910580194
上一篇:海湾消防模块安装箱如何使用 | 下一篇:最新某市《疑难解析》对密集场所的界定
此文关键字:
大于50m²无可开启外窗且经常有人员停留的房间应设置排烟设施
推荐文章
- 海湾系统在垂直行业中的定制化解决方案——数据中心、储能、石油石化为代表的深度实践
- 关于海湾消防CRT系统在调试联动公式时提示“不能包含气体设备”的问题分析与解决建议
- 规定地下车库能否使用感烟探测器——技术、规范与实践的综合评估
- 海湾消防短路或接地故障而引起控制器损坏
- 海湾消防主机观察控制器显示:查看报警、故障及预警指示
- 海湾消防主机热敏打印机故障解决办法
- 海湾消防设备短路或接地故障导致控制器损坏之分析与防范
- 海湾消防通讯总线故障怎么解决
- 防火卷帘两侧的专用感温火灾探测器,跨越防火分区是否需设短路隔离器?
- 新规发布:学生宿舍必须安装火灾自动报警系统或具有联网功能的独立式火灾探测器!






苏公网安备32058102002150号